305 N Mechanic Street 7Lebanon, OH 45036


Mortgage Calculator
Monthly Payment (Est.)
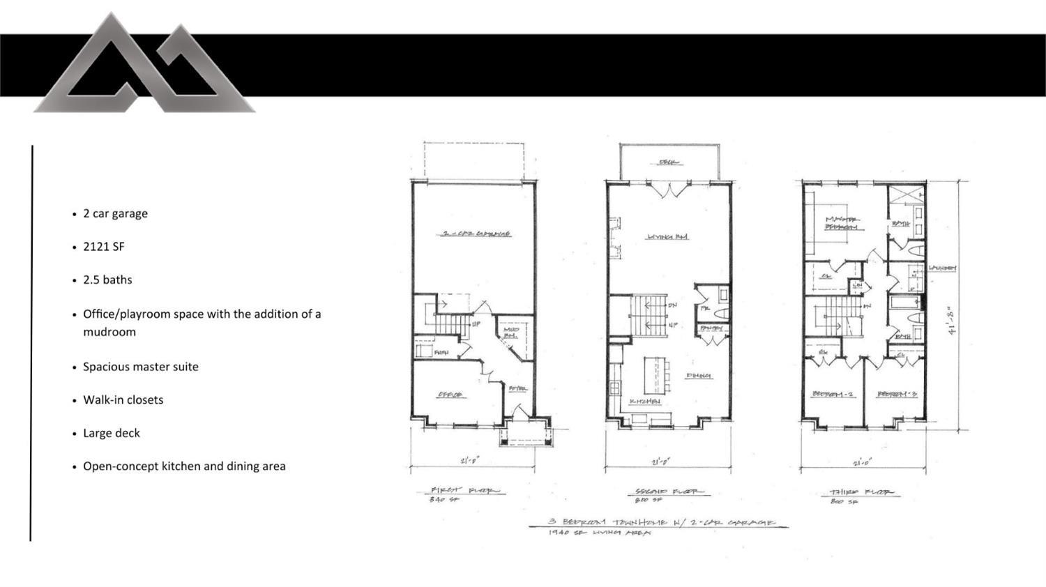
$2,596Welcome to Lebanon Landing Townhomes by Justin Doyle Homes, a new, walkable townhome community in Lebanon, Ohio. This 3-bed, 2.5-bath townhome offers approx. 2,121 SF, a 2-car garage and 3 finished levels with private direct entry on level one. The main living level features luxury vinyl plank flooring in the living area and office, an open kitchen with quartz countertops and island, appliances included, dedicated dining area, and a powder room. A balcony/deck off the great room extends the living space. The upper level includes carpeted bedrooms and stairs, a primary suite with walk-in closet, 2 additional bedrooms, full bath, and in-unit laundry. Brick exterior, black metal lamp posts and fencing, ample guest parking, and gorgeous landscaping complete this park-like community with playground and dog park. Walk to historic downtown Lebanon, parks, dining, and shopping, with easy access to the 1-75 and I-71. Tax abatement and buyer incentives available. Pre-selling now!
| 4 weeks ago | Listing updated with changes from the MLS® | |
| 4 weeks ago | Listing first seen on site |
Listing information is provided by Participants of the Cincy MLS. IDX information is provided exclusively for personal, non-commercial use, and may not be used for any purpose other than to identify prospective properties consumers may be interested in purchasing. Information is deemed reliable but not guaranteed. Copyright 2026, Cincy MLS.
Last checked: 2026-01-22 03:23 AM UTC
Did you know? You can invite friends and family to your search. They can join your search, rate and discuss listings with you.