3180 Sage Court Lt 98Union Twp, OH 45152




Mortgage Calculator
Monthly Payment (Est.)
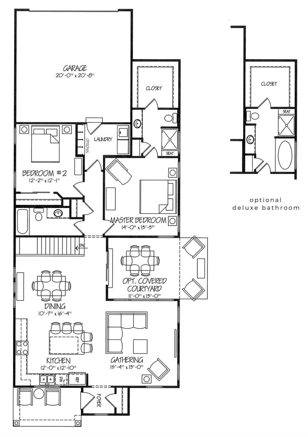
$2,441Experience the perfect blend of modern comfort and sustainable living in this gorgeous new Pendragon Homes build, located in a unique community-supported agriculture (CSA) neighborhood. Here, fresh, locally grown produce and a welcoming community are part of everyday life all while enjoying the ease and beauty of a brand new, low maintenance home. Located at 3176 Sage Ct, The Cambridge Plan offers an inviting open layout with vaulted ceilings, spacious rooms, and thoughtful design throughout. With 2 bedrooms and 2 full baths, it's the ideal balance of comfort and efficiency. Eco-friendly upgrades include geothermal heating and cooling and a whole-house water filtration system for healthier, sustainable living. Need something a little different? Reach out to see how we can design a plan perfect for you.
| 2 days ago | Listing updated with changes from the MLS® | |
| 5 months ago | Listing first seen on site |
Listing information is provided by Participants of the Cincy MLS. IDX information is provided exclusively for personal, non-commercial use, and may not be used for any purpose other than to identify prospective properties consumers may be interested in purchasing. Information is deemed reliable but not guaranteed. Copyright 2026, Cincy MLS.
Last checked: 2026-01-22 07:02 AM UTC
Did you know? You can invite friends and family to your search. They can join your search, rate and discuss listings with you.